Ура хрущевке, но мысль завяла - Littleone 2006-2009
Архив форума 04.2006 - 04.2009

Вернуться   Littleone 2006-2009 > Дела семейные > Наш дом



 
Опции темы Поиск в этой теме Опции просмотра
Старый 09-04-2006, 13:14     #1
Ravilna
Наш человек
 
Профиль Ravilna
 
Зарегистрирован: Jul 2004
Адрес: Через речку от Смольного
Сообщения: 3 370
Ravilna отсутствует


За помощью к обществу обращаюсь, к коллективному разуму, знаниям и опыту.

Судя по всему у нашей семьи намечается счастье - переезд в огромную, аж 3-комнатную хрущевку, с классической 5-метровой кухней и смежно-изолированными комнатами.
Всем будет хорошо: у ребенка будет своя комната, у родителей - своя спальня, ну и общая комната + мамино рабочее место. Нас ведь всего трое на всю квартиру!

Переезжать будем быстро, но неделя, говорят, у нас будет.

И есть время подумать сейчас, что можно сделать с квартирой.

Хочу кухню объединить с большой комнатой.
Хочу увеличить ванную на ширину коридора.
Хочу убить стену между прихожей и большой комнатой.

Не хочу нарушать закон (но могу нарушить некоторые правила) и вызвать обрушение дома.

Понимаю, что кухню лучше делать один раз и нужную, а не переделывать через год (по опыту знаю, что мебель в маленькие помещения - очень дорогое удовольствие).
Также понимаю, что глобальные разрушения и циклевку пола лучше делать до въезда в квартиру, впрочем как и покраску потолка и обновление электропроводки.

Осознаю, что денег немного (точнее нет, поэтому влезем в долги) и следовательно нужен четкий долгосрочный план организации пространства.

Четкого плана нет. Не складывается.
ПОМОГИТЕ!!!
Если бы вы были в моей ситуации, что вы сделали бы с квартирой?

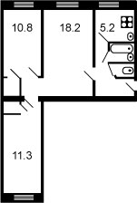
Приблизительный план квартиры прилагается
Изображения
 
Старый 09-04-2006, 13:45
ответ для Ravilna на сообщение "Ура хрущевке, но мысль завяла"
    #2
Alice
Мать И Реалистка
 
Профиль Alice
 
Зарегистрирован: Jan 2003
Адрес: Озерки
Сообщения: 6 736
Alice отсутствует


Привет!
Я писала про наши 42 кв. хрущевских метра:
http://www.2006-2009.littleone.ru/ar...0&fpart=1&vc=1
А вот тут план квартиры ДО и ПОСЛЕ:
http://www.2006-2009.littleone.ru/ar...0&fpart=5&vc=1
Может, поможет чем... :-))

Удачи!
Старый 09-04-2006, 14:08
ответ для Ravilna на сообщение "Ура хрущевке, но мысль завяла"
    #3
Ravilna
Наш человек
 
Профиль Ravilna
 
Зарегистрирован: Jul 2004
Адрес: Через речку от Смольного
Сообщения: 3 370
Ravilna отсутствует


Спасибо. Пойду изучать.
Старый 09-04-2006, 15:05
ответ для Ravilna на сообщение "Спасибо. Пойду изучать."
    #4
Lina
вне зоны доступа
 
Зарегистрирован: Feb 2002
Сообщения: 7 820
Lina отсутствует


Года 2 назад этот план был в Жилой Среде. Очeнь классно получилось! Если мне память не изменяет, было вот так
Изображения
 

Последний раз редактировалось Lina, 09-04-2006 в 19:40.
Старый 09-04-2006, 20:49
ответ для Ravilna на сообщение "Ура хрущевке, но мысль завяла"
    #5
Zeppelin
Наш человек
 
Профиль Zeppelin
 
Зарегистрирован: Jun 2004
Адрес: СПб
Сообщения: 6 212
Zeppelin отсутствует


У нас такая квартира.
Максимум дверей делаем раздвижными, с верхним подвесом. Стены ломаем по минимуму. В этих квартирах несущие внешние и та, которая идет от входной двери.
Красные линии - двери раздвижные, синие массивы - шкафы до потолка.

Последний раз редактировалось Zeppelin, 15-06-2006 в 09:25.
Старый 10-04-2006, 15:59
ответ для Ravilna на сообщение "Ура хрущевке, но мысль завяла"
    #6
Ravilna
Наш человек
 
Профиль Ravilna
 
Зарегистрирован: Jul 2004
Адрес: Через речку от Смольного
Сообщения: 3 370
Ravilna отсутствует


Спасибо большое.
У меня теперь вопросы.

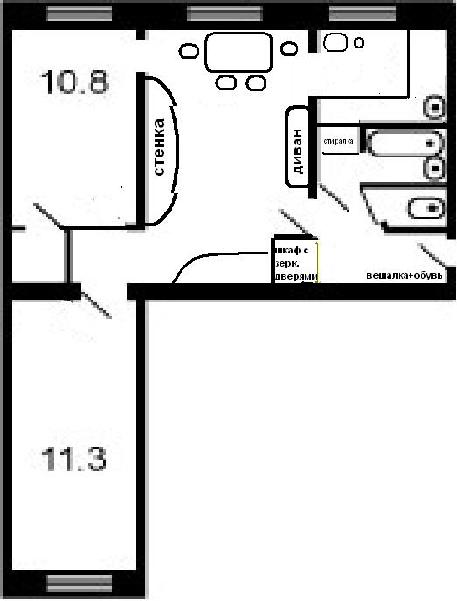
Lina, а не помните, почему дверь в "верхнюю левую" комнату перенесена к окну?

Mama7, так вы размеры ванной не меняли? Там как-то непонятно шкафы размещаются. Или это антресоли? Или у вас вход на кухню угловой из комнаты и коридора? Можно поподробнее?
Старый 10-04-2006, 16:14
ответ для Ravilna на сообщение "Ура хрущевке, но мысль завяла"
    #7
KoshkaNatashka
Умная Эльза
 
Зарегистрирован: Apr 2004
Сообщения: 8 879
KoshkaNatashka отсутствует


У нас очень похожая квартира, сделано примерно то же самое: дверь из кухни в большую комнату, ванная увеличена на ширину коридора. Мне очень нравится.
Еще у стенного шкафа, в который вход из комнаты 10.8, этот самый вход перенесен, он теперь из коридора. Это удобно тем, что в комнате можно устенки мебель ставить.
Двери из большой комнаты в кухню и прихожую - раздвижные.
Между большой комнатой и коридорчиком, который ведет в маленькие, - арка.





Ваши права в разделе
Вы не можете создавать темы
Вы не можете отвечать на сообщения
Вы не можете прикреплять файлы
Вы не можете редактировать сообщения

vB-коды Вкл.
[IMG] код Вкл.
HTML код Выкл.


Часовой пояс GMT +3, время: 01:39.


Powered by vBulletin® Version 3.6.12
Copyright ©2000 - 2025, Jelsoft Enterprises Ltd.