Помогите советом, хочу мойку напротив окна - Страница 3 - Littleone 2006-2009
Архив форума 04.2006 - 04.2009

Вернуться   Littleone 2006-2009 > Дела семейные > Наш дом



 
Опции темы Поиск в этой теме Опции просмотра
Старый 22-03-2008, 00:27     #1
puppi
Активный участник
 
Зарегистрирован: Sep 2006
Сообщения: 502
puppi отсутствует


с переносом коммуникаций
Изображения
 
Старый 22-03-2008, 01:42     #2
БараБуЛка
Элита
 
Зарегистрирован: Oct 2006
Адрес: Адмиралтейский
Сообщения: 1 391
БараБуЛка отсутствует


Ну вот это впринципе то что я и хочу, только плиту чуть поближе сюда, чтоб не друг на против друга были, проблема то в том и состоит что фановую(если она так называется) трубу трудно вести будет. Мастер предложил фановую трубу спрятать под полом(но что то я сомневаюсь, тем более что говорят нужен перепад, а если протечка или засор, это пол вскрывать чтоли?(
Старый 22-03-2008, 01:52     #3
puppi
Активный участник
 
Зарегистрирован: Sep 2006
Сообщения: 502
puppi отсутствует


еще,как вариант...
Изображения
 
Старый 22-03-2008, 01:55     #4
puppi
Активный участник
 
Зарегистрирован: Sep 2006
Сообщения: 502
puppi отсутствует


ой, без верних шкафов получилось, сори. на idv вас уже увидела!!!размеры всей кухни сделайте,а не только где мебель планируете. а дверной проем можно переместить?
Старый 22-03-2008, 02:22     #5
БараБуЛка
Элита
 
Зарегистрирован: Oct 2006
Адрес: Адмиралтейский
Сообщения: 1 391
БараБуЛка отсутствует


думала о дверном проеме, впринципе можно, муж пока противиться, но если будет вариант-))) размеры остальные уже завтра, спать пора, а то с мелким проснуться трудно будет с утреца.
Старый 22-03-2008, 02:28     #6
БараБуЛка
Элита
 
Зарегистрирован: Oct 2006
Адрес: Адмиралтейский
Сообщения: 1 391
БараБуЛка отсутствует


последний вариант нравится, но это получается не увеличение поверхности рабочей а увеличение шкафчиков, что в принципе тоже не плохо.
Убежала спать, спасибо вам за помощь еще раз!!!
Старый 22-03-2008, 16:32     #7
puppi
Активный участник
 
Зарегистрирован: Sep 2006
Сообщения: 502
puppi отсутствует


с переносом двери. верхнии шкафы пока не буду рисовать
Изображения
  
Старый 22-03-2008, 19:49     #8
БараБуЛка
Элита
 
Зарегистрирован: Oct 2006
Адрес: Адмиралтейский
Сообщения: 1 391
БараБуЛка отсутствует


Цитата:
Сообщение от puppi Посмотреть сообщение
с переносом двери. верхнии шкафы пока не буду рисовать
расставила размеры, туда холодильник не встанет(
Старый 22-03-2008, 18:40     #9
БараБуЛка
Элита
 
Зарегистрирован: Oct 2006
Адрес: Адмиралтейский
Сообщения: 1 391
БараБуЛка отсутствует


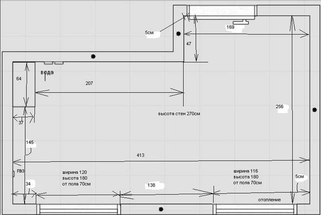
мне прям стыдно что я ввела в заблуждение вас.... выкалдываю точные размеры(мерял муж в этот раз).
Изображения
 
Старый 23-03-2008, 00:17     #10
puppi
Активный участник
 
Зарегистрирован: Sep 2006
Сообщения: 502
puppi отсутствует


да, ВАШИ размеры были лучше...........





Ваши права в разделе
Вы не можете создавать темы
Вы не можете отвечать на сообщения
Вы не можете прикреплять файлы
Вы не можете редактировать сообщения

vB-коды Вкл.
[IMG] код Вкл.
HTML код Выкл.


Часовой пояс GMT +3, время: 16:05.


Powered by vBulletin® Version 3.6.12
Copyright ©2000 - 2025, Jelsoft Enterprises Ltd.