подскажите, мудрые форумчане, что можно перепланировать в такой квартире - Страница 3 - Littleone 2006-2009
Архив форума 04.2006 - 04.2009

Вернуться   Littleone 2006-2009 > Дела семейные > Наш дом



 
Опции темы Поиск в этой теме Опции просмотра
Старый 28-11-2006, 15:13     #1
LediCat
Старожил
 
Профиль LediCat
 
Зарегистрирован: Aug 2006
Сообщения: 1 389
LediCat отсутствует


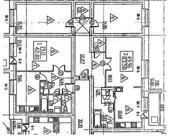
А что в плане означает квадрат, перечеркнутый крест-накрест пунктиром?
Старый 28-11-2006, 15:39     #2
lenulya
Наш человек
 
Профиль lenulya
 
Зарегистрирован: Jan 2005
Адрес: там.. та-та-там, там-там-там
Сообщения: 4 297
lenulya отсутствует


это антресоли
Старый 28-11-2006, 17:21     #3
popa
Активный участник
 
Зарегистрирован: Apr 2005
Сообщения: 553
popa отсутствует


Цитата:
Сообщение от На-Таша Посмотреть сообщение
А что в плане означает квадрат, перечеркнутый крест-накрест пунктиром?

Насколько я поняла это вентканал

Автору СУ совмещать не советую.

А по поводу 0.7 метров (норматив) дак вы присядьте на инитаз как на биде и померяйте нужно ли вам 70 см с каждой стороны, я думаю, что нет. А если да, то не делайте биде, а сделайте гигиенический душ рядом с унитазом и всего делов.
Старый 28-11-2006, 15:53     #4
LediCat
Старожил
 
Профиль LediCat
 
Зарегистрирован: Aug 2006
Сообщения: 1 389
LediCat отсутствует


Делайте большую ванну. Даже если не поставите биде, то за счет убранной двери на кухню появится большая доп.стена на которую можно повесить например полотенцесушитель. Или в получившийся угол поставить что-нибудь.
Старый 28-11-2006, 16:16     #5
lenulya
Наш человек
 
Профиль lenulya
 
Зарегистрирован: Jan 2005
Адрес: там.. та-та-там, там-там-там
Сообщения: 4 297
lenulya отсутствует


санузел делать совместным не хочется, потому как он один в квартире (было б 2, точно бы совместила) семья у нас большая (а станет еще больше) - кому руки помыть, кому зубы почистить.... Всем стоять под дверью, торопить,когда кто-то там сидит неудобно...
А делать кабинку-туалет или полуперегородку (прям как душевую) очень как-то по-офисному.
Интересно, а если туалет и ванную местами поменять это что-то изменит к лучшему (кроме проблем по переносу труб....)
Старый 28-11-2006, 20:22     #6
TashaV
Наш человек
 
Зарегистрирован: Sep 2006
Сообщения: 7 281
TashaV отсутствует


Объединять СУ не стоит, если больше 2-х человек живет. А как увеличить ванну/туалет за счет коридорчика? Как вы туда проходить будете? через гостинную и кухню? (у меня у свекров вход в туалет через кухню сделан, а коридор прихожая-кухня к ванной присоединен, но у них особого выбора не было, тк мужчины в семье крупные, и ванну сразу меняли на бОльшую (французская на 10 см шире наших и тогда там вообще не развернуться было бы), но у них и гостинная не жилая по сути комната, те там обычно не спят).
А наоборот: расширить гостинную за счет части коридора (сделав дверь в коридорчик с СУ) и выделив кабинет, например, стеллажом? Не думали?
Старый 29-11-2006, 12:57     #7
LediCat
Старожил
 
Профиль LediCat
 
Зарегистрирован: Aug 2006
Сообщения: 1 389
LediCat отсутствует


Если С/У совмещать не хотите, тогда лучше туалет с ванной не трогать. Зачем увеличивать туалет? А вот кладовку я бы, наверное, объдинила с комнатой и в получившейся нише сделала бы рабочее место для мужа типа "кабинет"

Примерно как-то так:
Изображения
 
Старый 29-11-2006, 22:55     #8
Tigra
Элита
 
Зарегистрирован: Nov 2002
Адрес: Бухарестская
Сообщения: 1 758
Tigra отсутствует


А если перенести туалет на противоположную стену и повернуть унитаз и биде(если влезет) лицом, так сказать, к двери. Правда тогда точно придется проход в кухню делать через гостинную. Недавно был топик про такое изменение, почитайте. Если получится прикрепить рисунок, обратите внимание на кухню и санузлы.
А еще я бы передвинула дверные проемы в комнаты(если отсуп от стены внутри комнаты меньше 50см), кладовка между комнатами увеличится, а в реальности ничего не потеряете, кроме длины шкафов в коридоре, если собирались ставить.
Изображения
 
Старый 29-11-2006, 23:23     #9
Tigra
Элита
 
Зарегистрирован: Nov 2002
Адрес: Бухарестская
Сообщения: 1 758
Tigra отсутствует


Вот как окончательный вариант(со всеми изменениями)
Изображения
 
Старый 30-11-2006, 06:17     #10
nvodovoz
Мега-элита
 
Профиль nvodovoz
 
Зарегистрирован: Jul 2003
Адрес: Пермь
Сообщения: 4 307
nvodovoz отсутствует


В этой планировке еще прихожая проходная - грязь будет разноситься. Может, что-то с ней еще придумать?





Ваши права в разделе
Вы не можете создавать темы
Вы не можете отвечать на сообщения
Вы не можете прикреплять файлы
Вы не можете редактировать сообщения

vB-коды Вкл.
[IMG] код Вкл.
HTML код Выкл.


Часовой пояс GMT +3, время: 19:26.


Powered by vBulletin® Version 3.6.12
Copyright ©2000 - 2025, Jelsoft Enterprises Ltd.