подскажите, мудрые форумчане, что можно перепланировать в такой квартире - Страница 2 - Littleone 2006-2009
Архив форума 04.2006 - 04.2009

Вернуться   Littleone 2006-2009 > Дела семейные > Наш дом



 
Опции темы Поиск в этой теме Опции просмотра
Старый 28-11-2006, 15:12     #11
popa
Активный участник
 
Зарегистрирован: Apr 2005
Сообщения: 553
popa отсутствует


им до этих стенок между камнатами и коридором, тем более выполненных строителями пофиг
а уж сколько у вас от унитаза до биде вообще никому дела нет
Старый 28-11-2006, 15:13     #12
LediCat
Старожил
 
Профиль LediCat
 
Зарегистрирован: Aug 2006
Сообщения: 1 389
LediCat отсутствует


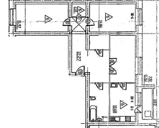
А что в плане означает квадрат, перечеркнутый крест-накрест пунктиром?
Старый 28-11-2006, 15:39     #13
lenulya
Наш человек
 
Профиль lenulya
 
Зарегистрирован: Jan 2005
Адрес: там.. та-та-там, там-там-там
Сообщения: 4 297
lenulya отсутствует


это антресоли
Старый 28-11-2006, 15:48     #14
Lenka_P
Старожил
 
Профиль Lenka_P
 
Зарегистрирован: Sep 2004
Сообщения: 1 341
Lenka_P отсутствует


Балкон на кухне!!! Моя несбыточная мечта!

А совместить туалет и ванну? И отдать под с/у еще и кусок 1.20. (хочешь биде, хочешь шкаф для полотенец и тп.п) Вход на кухню из гостиной. Кладовку увеличить за счет гостиной. В гостиной - большие раздвижные двери (или вообще без них) и тогда, когда они открыты пространство холла и гостиной объединяется и получается очень просторным.

А застройщик согласен делать перепланировку? Пусть внесет изменения в проект. У нас сделал и внес изменения в проект. И госкомиссия останется довольна.

типа того:
Изображения
 
Старый 28-11-2006, 15:53     #15
LediCat
Старожил
 
Профиль LediCat
 
Зарегистрирован: Aug 2006
Сообщения: 1 389
LediCat отсутствует


Делайте большую ванну. Даже если не поставите биде, то за счет убранной двери на кухню появится большая доп.стена на которую можно повесить например полотенцесушитель. Или в получившийся угол поставить что-нибудь.
Старый 28-11-2006, 16:03     #16
LediCat
Старожил
 
Профиль LediCat
 
Зарегистрирован: Aug 2006
Сообщения: 1 389
LediCat отсутствует


Цитата:
Сообщение от Lenka_P Посмотреть сообщение
Кладовку увеличить за счет гостиной.
Я бы не стала этого делать. Зачем увеличивать кладовку и коридор за счет комнаты?
Если нужно рабочее место для мужа лучше зонировать комнату. Сейчас это так красиво делают!
Старый 28-11-2006, 16:16     #17
lenulya
Наш человек
 
Профиль lenulya
 
Зарегистрирован: Jan 2005
Адрес: там.. та-та-там, там-там-там
Сообщения: 4 297
lenulya отсутствует


санузел делать совместным не хочется, потому как он один в квартире (было б 2, точно бы совместила) семья у нас большая (а станет еще больше) - кому руки помыть, кому зубы почистить.... Всем стоять под дверью, торопить,когда кто-то там сидит неудобно...
А делать кабинку-туалет или полуперегородку (прям как душевую) очень как-то по-офисному.
Интересно, а если туалет и ванную местами поменять это что-то изменит к лучшему (кроме проблем по переносу труб....)
Старый 28-11-2006, 17:21     #18
popa
Активный участник
 
Зарегистрирован: Apr 2005
Сообщения: 553
popa отсутствует


Цитата:
Сообщение от На-Таша Посмотреть сообщение
А что в плане означает квадрат, перечеркнутый крест-накрест пунктиром?

Насколько я поняла это вентканал

Автору СУ совмещать не советую.

А по поводу 0.7 метров (норматив) дак вы присядьте на инитаз как на биде и померяйте нужно ли вам 70 см с каждой стороны, я думаю, что нет. А если да, то не делайте биде, а сделайте гигиенический душ рядом с унитазом и всего делов.
Старый 28-11-2006, 17:51     #19
lenulya
Наш человек
 
Профиль lenulya
 
Зарегистрирован: Jan 2005
Адрес: там.. та-та-там, там-там-там
Сообщения: 4 297
lenulya отсутствует


Цитата:
Сообщение от popa Посмотреть сообщение
а уж сколько у вас от унитаза до биде вообще никому дела нет
Мне главное не норматив, а удобство. Вот начерчу я, скажем туалет на 0,5 больше, а биде туда не встанет. Спрашивается, зачем мне такой бесполезно широкий туалет... Если сразу в ванную расширять, то тоже надо понять - а что от этих см. я выиграю...Вот и советуюсь...
Старый 28-11-2006, 20:22     #20
TashaV
Наш человек
 
Зарегистрирован: Sep 2006
Сообщения: 7 281
TashaV отсутствует


Объединять СУ не стоит, если больше 2-х человек живет. А как увеличить ванну/туалет за счет коридорчика? Как вы туда проходить будете? через гостинную и кухню? (у меня у свекров вход в туалет через кухню сделан, а коридор прихожая-кухня к ванной присоединен, но у них особого выбора не было, тк мужчины в семье крупные, и ванну сразу меняли на бОльшую (французская на 10 см шире наших и тогда там вообще не развернуться было бы), но у них и гостинная не жилая по сути комната, те там обычно не спят).
А наоборот: расширить гостинную за счет части коридора (сделав дверь в коридорчик с СУ) и выделив кабинет, например, стеллажом? Не думали?





Ваши права в разделе
Вы не можете создавать темы
Вы не можете отвечать на сообщения
Вы не можете прикреплять файлы
Вы не можете редактировать сообщения

vB-коды Вкл.
[IMG] код Вкл.
HTML код Выкл.


Часовой пояс GMT +3, время: 15:18.


Powered by vBulletin® Version 3.6.12
Copyright ©2000 - 2025, Jelsoft Enterprises Ltd.